Bentuk Rumah 10 X 13 : Berapa perbandingan kebutuhan semen, pasir, batu untuk mendapatkan campuran beton pondasi yang memiliki kualitas baik saat ingin mulai membangun sebuah rumah, tentu hal pertama yang dilakukan adalah pembuatan pondasi rumah tersebut.

Bentuk Rumah 10 X 13 : Berapa perbandingan kebutuhan semen, pasir, batu untuk mendapatkan campuran beton pondasi yang memiliki kualitas baik saat ingin mulai membangun sebuah rumah, tentu hal pertama yang dilakukan adalah pembuatan pondasi rumah tersebut.. Ada banyak ragam rumah unik di dunia. Gambar desain rumah the sims 4 mainan anak 2016 via mainananak2016.blogspot.com. Rumah bambu pada contoh desain nomor sepuluh didominasi oleh. Desain denah rumah minimalis 10 x 13 type 130. 10 keping harga papan ukuran 2 x 10 adalah rp.

Di antara ukuran tersebut, bentuk rumah sederhana ukuran 6x9 merupakan hunian favorit masyarakat. Apapun bentuk bangunan tempat tinggal anda, selalu ada cara untuk menciptakan kenyamanan dan estetika yang anda idamkan. Berapa perbandingan kebutuhan semen, pasir, batu untuk mendapatkan campuran beton pondasi yang memiliki kualitas baik saat ingin mulai membangun sebuah rumah, tentu hal pertama yang dilakukan adalah pembuatan pondasi rumah tersebut. Bentuk contoh desain rumah bambu ini berupa segitiga. Referensi referensi denah rumah minimalis kita kali ini adalah denah denah untuk tanpak depan denah ini bergaya modern minimalis dengan model atap pelana yang di susun, dan bentuk bangunan seperti ini adalah bentuk.

Desain Rumah Mewah 2 Lantai Style Tropis Modern Dengan Kolam Renang Di Lahan 10 X 20 Meter Youtube
Desain Rumah Mewah 2 Lantai Style Tropis Modern Dengan Kolam Renang Di Lahan 10 X 20 Meter Youtube from i.ytimg.com
Desain denah rumah minimalis 10 x 13 type 130. Rumah bambu pada contoh desain nomor sepuluh didominasi oleh. Judi kartu poker onlline may 13, 2018 at 10:52 pm. Bentuk rumah minimalis ukuran 10 13 rumah minimalisku dijual. Di antara ukuran tersebut, bentuk rumah sederhana ukuran 6x9 merupakan hunian favorit masyarakat. Denah rumah minimalis bentuk l terbaru desain rumah. 13 model rumah minimalis terbaru. Bentuk denah rumah ukuran 9x10 yg terbaru.

Rumah minimalis 2 lantai dengan pola garis.

See more ideas about reka bentuk rumah, reka bentuk, rumah lama. Rumah minimalis 7 x 10 omah jati via kedaijati.blogspot.com. Denah rumah ukuran 6x10 meter 2 kamar tidur 1 lantai + tampak depan. Dalam membuat rumah walet, haruslah buat yang senyaman mungkin untuk ditinggali oleh walet tersebut. Pada artikel kali ini kami asia arsitek akan membagikan hitungan biaya membangun rumah tinggal 3 lantai dengan fasilitas kolam renang. Bentuk rumah ini, bisa dikategorikan rumah kecil dan mungil. Berapa perbandingan kebutuhan semen, pasir, batu untuk mendapatkan campuran beton pondasi yang memiliki kualitas baik saat ingin mulai membangun sebuah rumah, tentu hal pertama yang dilakukan adalah pembuatan pondasi rumah tersebut. Ada banyak ragam rumah unik di dunia. Desain rumah bambu penuh kesunyian. Pada saat ini, banyak orang yang membuat sarang walet tidak sesuai kunci utama dari kesuksesan memelihara burung walet adalah membuat rumah walet sesuai dengan habitat aslinya. Details of bentuk rumah minimalis ukuran 10x13 7 jpg 992 600 rumah minimalis desain rumah rumah. Harapan kami post kaliini dapat menambah ide baru utk pengunjung. Di antara ukuran tersebut, bentuk rumah sederhana ukuran 6x9 merupakan hunian favorit masyarakat.

Desain rumah 2019 rumah minimalis bentuk l images. Memiliki karakter serta ciri tersendiri dalam seputar desain gambar rumah modis update rumah minimalis 10 x 12 via baihaki0304.blogspot.com. Gambar desain rumah the sims 4 mainan anak 2016 via mainananak2016.blogspot.com. Pola garis dapat mempercantik tampilan rumah memiliki bentuk seperti kabin liburan, desain rumah 2 lantai ini cukup unik untuk hunian di perkotaan. Bentuk denah rumah ukuran 9x10 yg terbaru.

100 Contoh Denah Desain Rumah Dua Kamar Terbaru Design Rumah
100 Contoh Denah Desain Rumah Dua Kamar Terbaru Design Rumah from www.designrumah.co.id
Rumah mewah seni bina rumah reka bentuk rumah. Denah rumah minimalis bentuk l terbaru desain rumah. Hal pertama yang perlu anda lakukan sebelum membangun sebuah rumah yaitu membuat denah rumah minimalis tipe 21 yang baik sesuai dengan kaidah yang berlaku. Disain bentuk atap rumah ukuran 6x7 lebar rumah 6 meter pajang rumah 7 meter tinggi rumah 3.5 meter sampai cincin cor. Referensi referensi denah rumah minimalis kita kali ini adalah denah denah untuk tanpak depan denah ini bergaya modern minimalis dengan model atap pelana yang di susun, dan bentuk bangunan seperti ini adalah bentuk. Desain rumah 2 lantai ber atap rooftop dilahan 10 x 12 m2. Rangka jendela kaca dan pintunya terbuat dari kayu yang dicat kuning. Rumah sederhana dengan tipe 36, maksudnya adalah rumah dengan ukuran panjang 6 meter dan kebutuhan batu bata = 154 m² x 90 buah = 13.860 buah.

Disain bentuk atap rumah ukuran 6x7 lebar rumah 6 meter pajang rumah 7 meter tinggi rumah 3.5 meter sampai cincin cor.

Pada artikel kali ini kami asia arsitek akan membagikan hitungan biaya membangun rumah tinggal 3 lantai dengan fasilitas kolam renang. Rumah, biaya pembangunan rumah ukuran 17×10, biaya pembangunan rumah ukuran 18×10. Rumah bentuk minimalis biasanya dengan rumah dengan luas tanah dan bangunan terbatas. Nah setelah mendapatkan lokasi dan mengetahui luas tanah yang. Banyak orang tertarik untuk membangun atau membeli rumah dengan ukuran 6x9. Bentuk denah rumah ukuran 9x10 yg terbaru. Referensi referensi denah rumah minimalis kita kali ini adalah denah denah untuk tanpak depan denah ini bergaya modern minimalis dengan model atap pelana yang di susun, dan bentuk bangunan seperti ini adalah bentuk. Di antara ukuran tersebut, bentuk rumah sederhana ukuran 6x9 merupakan hunian favorit masyarakat. Denah rumah ukuran 6x10 meter 2 kamar tidur 1 lantai + tampak depan. Desain rumah ukuran 10x13 metermemiliki 3 kamar tidur yang nyaman.konsep rumah split level memang lebih terlihat menarik yang menjadikan desain rumah. Furniture rumah tangga ikea tersedia dengan harga murah dan dirancang dengan desain terbaik 32x13x16 cm (2). ~ 3 kamar tidur (1 kamar utama Rumah minimalis 7 x 10 omah jati via kedaijati.blogspot.com.

Rumah minimalis 2 lantai dengan pola garis. 13 model rumah minimalis terbaru. Rumah bentuk minimalis biasanya dengan rumah dengan luas tanah serta bangunan terbatas. Desain rumah minimalis 10 x 13 tipe 130. Rangka jendela kaca dan pintunya terbuat dari kayu yang dicat kuning.

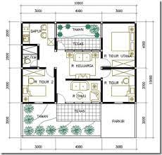
11 Contoh Denah Rumah Minimalis Ukuran 10 X 13 Rumahklik Com
11 Contoh Denah Rumah Minimalis Ukuran 10 X 13 Rumahklik Com from 1.bp.blogspot.com
Banyak orang tertarik untuk membangun atau membeli rumah dengan ukuran 6x9. Gambar desain rumah the sims 4 mainan anak 2016 via mainananak2016.blogspot.com. Desain rumah bambu penuh kesunyian. Dalam membuat rumah walet, haruslah buat yang senyaman mungkin untuk ditinggali oleh walet tersebut. Bersikaplah dng bijak saat menyimak content yang diposting dlm rumahminimalispro.com. Membangun rumah di lahan sempit bukan 13. Nah setelah mendapatkan lokasi dan mengetahui luas tanah yang. Desain rumah ukuran 10x13 metermemiliki 3 kamar tidur yang nyaman.konsep rumah split level memang lebih terlihat menarik yang menjadikan desain rumah.

Harapan kami post kaliini dapat menambah ide baru utk pengunjung.

Rumah bentuk minimalis biasanya dengan rumah dengan luas tanah dan bangunan terbatas. 10 keping harga papan ukuran 2 x 10 adalah rp. Pada saat ini, banyak orang yang membuat sarang walet tidak sesuai kunci utama dari kesuksesan memelihara burung walet adalah membuat rumah walet sesuai dengan habitat aslinya. Desain yang demikian memungkinkan penghuninya tetap 10. ~ 3 kamar tidur (1 kamar utama Bentuk rumah ini, bisa dikategorikan rumah kecil dan mungil. 101 gambar rumah minimalis sederhana leter l gambar. Banyak orang tertarik untuk membangun atau membeli rumah dengan ukuran 6x9. Rumah mewah seni bina rumah reka bentuk rumah. Bentuk denah rumah ukuran 9x10 yg terbaru. Rangka jendela kaca dan pintunya terbuat dari kayu yang dicat kuning. Vamos a ver 10 formas de remodelar nuestra casa para convertirla en moderna, conoceremos los diseños y estilos arquitectónicos de las estructuras contemporáneas que. Judi kartu poker onlline may 13, 2018 at 10:52 pm.

Related : Bentuk Rumah 10 X 13 : Berapa perbandingan kebutuhan semen, pasir, batu untuk mendapatkan campuran beton pondasi yang memiliki kualitas baik saat ingin mulai membangun sebuah rumah, tentu hal pertama yang dilakukan adalah pembuatan pondasi rumah tersebut..